О нормативных основаниях материально-технического оснащения центра проведения демонстрационного экзамена для осуществления государственной итоговой аттестации

Демонстрационный экзамен в соответствии с Порядком проведения государственной итоговой аттестации по образовательным программам среднего профессионального образования, утвержденным приказом Минпросвещения России от 08.11.2021 № 800 «Об утверждении Порядка проведения государственной итоговой аттестации по образовательным программам среднего профессионального образования» (далее – Порядок), является формой государственной итоговой аттестации по образовательным программам среднего профессионального образования, направленной на определение уровня освоения выпускником материала, предусмотренного образовательной программой, и степени сформированности профессиональных умений и навыков путем проведения независимой экспертной оценки выполненных выпускником практических заданий в условиях реальных или смоделированных производственных процессов.

Согласно Порядку демонстрационный экзамен проводится по двум уровням: базовому и профильному. При этом используются единые оценочные материалы, включающие в себя конкретные комплекты оценочной документации, варианты заданий и критерии оценивания, разрабатываемых организацией, определяемой Минпросвещения России из числа подведомственных ему организаций (далее – оператор).

Комплект оценочной документации включает комплекс требований для проведения демонстрационного экзамена, перечень оборудования и оснащения, расходных материалов, средств обучения и воспитания, примерный план застройки площадки демонстрационного экзамена, требования к составу экспертных групп, инструкции по технике безопасности, а также образцы заданий. Задание демонстрационного экзамена включает комплексную практическую задачу, моделирующую профессиональную деятельность и выполняемую в режиме реального времени.

Комплекты оценочной документации для проведения демонстрационного экзамена профильного уровня разрабатываются оператором с участием организаций-партнеров, отраслевых и профессиональных сообществ. 

Минпросвещения России обеспечивает размещение разработанных комплектов оценочной документации на официальном сайте оператора в информационно-телекоммуникационной сети «Интернет» (далее – сеть «Интернет») не позднее 1 октября года, предшествующего проведению государственной итоговой аттестации.

Следует отметить, что согласно требованиям Порядка демонстрационный экзамен проводится в центре проведения демонстрационного экзамена (далее – ЦПДЭ), представляющем собой площадку, оборудованную и оснащенную в соответствии с комплектом оценочной документации. ЦПДЭ может располагаться на территории образовательной организации, а при сетевой форме реализации образовательных программ – также на территории иной организации, обладающей необходимыми ресурсами для организации центра проведения экзамена.

Количество, общая площадь и состояние помещений, предоставляемых для проведения демонстрационного экзамена, должны обеспечивать проведение демонстрационного экзамена в соответствии с комплектом оценочной документации. ЦПДЭ может быть дополнительно обследован оператором на предмет соответствия условиям, установленным комплектом оценочной документации, в том числе в части наличия расходных материалов.

В соответствии с пунктом 19 Порядка оператором демонстрационного экзамена базового и профильного уровней по образовательным программам среднего профессионального образования определено федеральное государственное бюджетное образовательное учреждение дополнительного профессионального образования «Институт развития профессионального образования» (далее – ИРПО) на основании приказа Минпросвещения России от 17.04.2023 № 285 «Об операторе демонстрационного экзамена базового и профильного уровней по образовательным программам среднего профессионального образования».

Для проведения демонстрационного экзамена в 2023 году на официальном сайте ИРПО в сети «Интернет» размещены соответствующие оценочные материалы (https://de.firpo.ru/om/).

Так, например, чтобы определить инфраструктурные и материально-технические требования к проведению в рамках государственной итоговой аттестации демонстрационного экзамена профильного уровня по компетенции «Электрослесарь подземный», необходимо ознакомиться с соответствующим комплектом оценочной документации.

На официальном сайте ИРПО в сети «Интернет» помимо раздела «02. Базовый уровень ДЭ (Оценочные материалы)» с оценочными материалами для демонстрационного экзамена базового уровня, в том числе для 21.01.15 Электрослесарь подземный (с комплектом оценочной документации КОД 21.01.15-2023), есть раздел «06. Производство и инженерные технологии», в котором имеется строка «R61 Электрослесарь подземный Underground Electrician» со ссылкой на:

  • таблицу соответствия компетенции WSR, ФГОС СПО и Профстандарта;
  • комплекты оценочной документации;
  • требования к инфраструктуре и материально-техническому оснащению мастерских. 

В соответствии с данными, содержащимися в Примерной таблице, устанавливающей соответствие между компетенциями Ворлдскиллс Россия и профессиями/специальностями среднего профессионального образования, проведение в рамках государственной итоговой аттестации демонстрационного экзамена по компетенции «Электрослесарь подземный» осуществляется с использованием комплекта оценочной документации КОД 1.4-2022-2024.

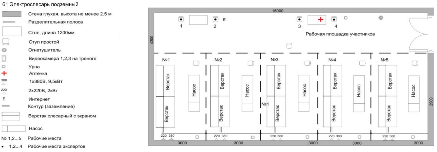
Оценочные материалы для демонстрационного экзамена по стандартам Ворлдскиллс Россия по компетенции R61 Электрослесарь подземный, утвержденные рабочей группой по вопросам разработки оценочных материалов в 2021 году для проведения Демонстрационного экзамена по стандартам Ворлдскиллс Россия по образовательным программам среднего профессионального образования (протокол от 23.12.2021-1г. № Пр-23.12.2021-1), содержат в том числе Комплект оценочной документации паспорт КОД 1.4-2022-2024, которым предусмотрен план застройки площадки ЦПДЭ по стандартам Ворлдскиллс Россия (очный / распределенный) общей площадью 65 кв.м (см. рис.).

 

План застройки площадки ЦПДЭ по стандартам Ворлдскиллс Россия
 (очный / распределенный)

Кроме того, требования к инфраструктуре и материально-техническому оснащению мастерских для проведения демонстрационного экзамена по компетенции «Электрослесарь подземный» содержат инфраструктурные листы, в том числе относящиеся к комплекту оценочной документации КОД 1.4-2022-2024.

Реестр ЦПДЭ (https://cpde.dp.firpo.ru/) содержит сведения об 11 ЦПДЭ, на базе которых в 2023 году проводится демонстрационный экзамен по компетенции «Электрослесарь подземный», все – с использованием КОД 1.4-2022-2024.

Таким образом, для проведения демонстрационного экзамена, в том числе профильного уровня, ЦПДЭ должны быть оборудованы и оснащены в соответствии с определенным комплектом оценочной документации.

Следует обратить внимание на то, что опубликованные оценочные материалы для проведения демонстрационного экзамена в 2024 году размещаются на сайте https://bom.firpo.ru/Public. При этом ИРПО организовано публичное обсуждение проектов оценочных материалов для проведения государственной итоговой аттестации по образовательным программам среднего профессионального образования в форме демонстрационного экзамена в 2024 году.